top of page
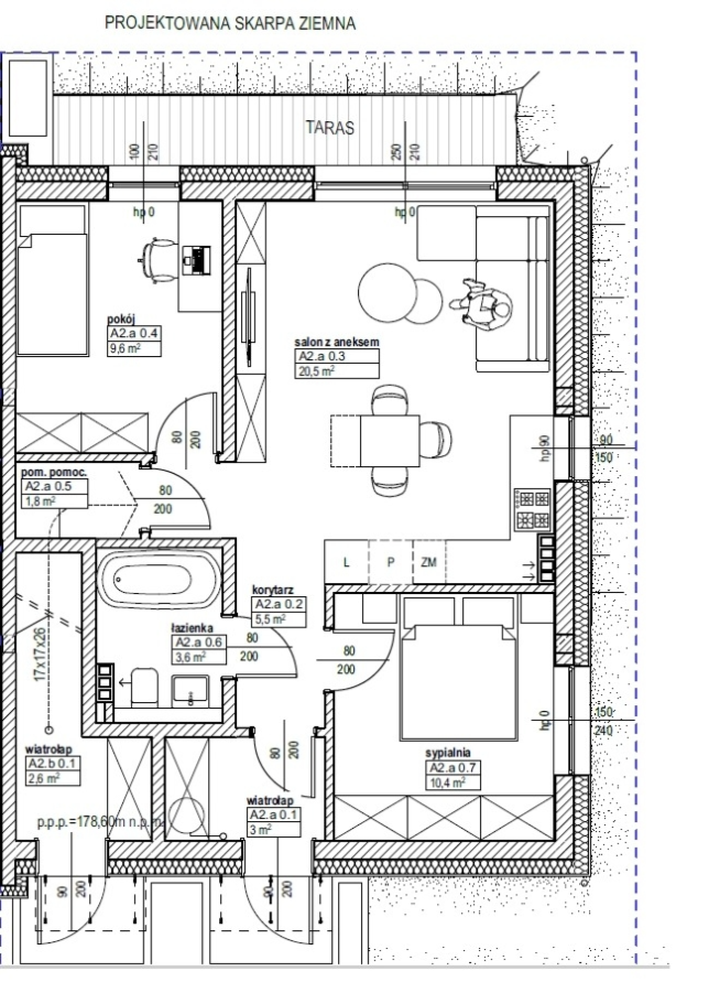
MIESZKANIE B1
DOSTĘPNE
wiatrołap
3,0
korytarz
5,5
salon z aneksem
20,5
pokój
9,6
pom. pomoc.
1,8
łazienka
3,6
sypialnia
10,4
Powierzchnia
54,4 m2
MIESZKANIE B2
DOSTĘPNE
wiatrołap
3,0
korytarz
5,5
salon z aneksem
20,5
pokój
9,6
pom. pomoc.
1,8
łazienka
3,6
sypialnia
10,4
Powierzchnia
54,4 m2
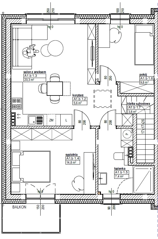
MIESZKANIE B3
DOSTĘPNE
korytarz
5,6
salon z aneksem
20,3
sypialnia
14,8
łazienka
7,4
pokój
9,8
klatka schodowa
3,8
wiatrołap
2,6
Powierzchnia
64,3 m2
MIESZKANIE B4
DOSTĘPNE
korytarz
5,6
salon z aneksem
20,4
sypialnia
14,8
łazienka
7,4
pokój
9,8
klatka schodowa
3,8
wiatrołap
2,6
Powierzchnia
64,3 m2
bottom of page




